Descripción

La Junta de Gobierno Local ha aprobado en su sesión de hoy el proyecto básico reformado y de ejecución de un edificio, con reestructuración media, para transformarlo en 23 viviendas, locales y garaje, en la calle Bajada de la Libertad 10, con vuelta a calle Echegaray.

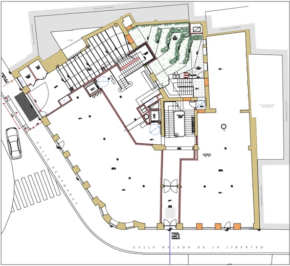
El cambio más significativo incluido en el proyecto básico y de ejecución es que se ha eliminado una de las plantas de sótano, por tanto, el edificio contará con una sola planta de sótano con un total de 16 plazas de aparcamiento. Por lo tanto, se ha modificado la distribución de esta planta para adaptarla a una sola planta de sótano.

Además, se ha eliminado una de las buhardillas de la vivienda ‘A’ de la Escalera 1 en la planta 5ª, para poner más ventanas tipo velux y así cumplir con la superficie mínima de ventilación e iluminación. También se han realizado pequeños ajustes en las dimensiones de las viviendas proyectadas, siendo la distribución la misma que existía en el proyecto básico modificado.

Este proyecto tiene por objeto definir las características espaciales y constructivas que tendrá el edificio en el que se pretende realizar las modificaciones oportunas para reformar el inmueble existente. La finalidad es conseguir un edificio residencial que contará con 23 viviendas, 2 locales comerciales y una planta de sótano dedicada a garaje. Para ello se plantea realizar una reestructuración media en el edificio, que es una actuación autorizable por parte del Ayuntamiento en edificios con grado de catalogación P3.

El proyecto anterior contaba con licencia de obras, pero al cambiar el número de plantas de sótano y pasar de 2 a una sola planta de sótano, esta licencia se debía actualizar y por ello se redactó el presente proyecto básico reformado y de ejecución.