
La Junta de Gobierno Local del Ayuntamiento de Valladolid ha aprobado la concesión de dos licencias de obras (proyecto básico y de ejecución) destinadas a la mejora de sendos centros educativos de la ciudad, promovidas por la Dirección Provincial de Educación...
- Fecha de la noticia
- 31 de marzo de 2026

Valladolid supera el 90% de recaudación voluntaria y refuerza su estrategia contra el fraude fiscal en 2026.La Junta de Gobierno Local del Ayuntamiento de Valladolid ha aprobado hoy el Plan General de Inspección Tributaria para el ejercicio 2026, en cumplimiento...
- Fecha de la noticia
- 31 de marzo de 2026

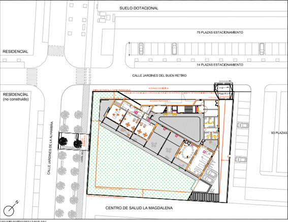
La Junta de Gobierno del Ayuntamiento de Valladolid, presidida por el alcalde, Jesús Julio Carnero, ha aprobado los asuntos que a continuación figuran en el orden del día:ACTA DE LA SESIÓN ANTERIORAprobar, si procede, el borrador del acta de la sesión ordinaria...
- Fecha de la noticia
- 31 de marzo de 2026

Al mismo tiempo ha sido aprobada la moción conjunta de los grupos municipales PP y Vox sobre la suspensión de dichos procedimientos sancionadores.El alcalde de Valladolid ha anunciado en el pleno municipal una estrategia basada en tres líneas de actuación para...
- Fecha de la noticia
- 30 de marzo de 2026

La deuda se reduce de 149 millones al cierre de 2024 a 140 millones a 31 de diciembre de 2025.El pago a proveedores mejora sustancialmente, pasando de los 30 días del mes de enero, a los 15 días en el mes de diciembre.El ejercicio 2025 alcanza los mayores niveles...
- Fecha de la noticia
- 30 de marzo de 2026







