El Ayuntamiento aprueba dos actuaciones urbanísticas relevantes en Parquesol y San Isidro
En las laderas sur de Parquesol se contemplan parcelas para uso terciario y un suelo reservado para el Ayuntamiento para construir viviendas protegidas
En las laderas sur de Parquesol se contemplan parcelas para uso terciario y un suelo reservado para el Ayuntamiento para construir viviendas protegidas

La urbanización del barrio de Parquesol va camino de concluir cuarenta años después de su planificación: hoy se ha aprobado el proyecto de actuación de las Laderas Suroeste de Parquesol. Además, la Junta de Gobierno ha dado vía libre a la aprobación inicial del proyecto del Paseo San Isidro, con la creación de una nueva plaza donde estaban unas naves. A partir de ahora sendos expedientes se someten a un periodo de exposición pública para que los ciudadanos y entidades interesadas puedan presentar alegaciones. En Parquesol se contemplan dos parcelas terciarias y una parcela residencial de 91 viviendas protegidas.
Manuel Saravia, concejal de Planeamiento Urbanístico y Vivienda, considera "muy interesantes" ambos proyectos urbanísticos porque, aunque son muy diferentes aportan soluciones a espacios que actualmente no están utilizados.
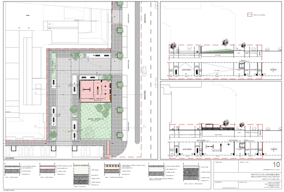
1ª) Proyecto de Urbanización del SE(o) 25- 02 Paseo S. Isidro.
Con fecha de octubre de 2020, se presentó en el Ayuntamiento de Valladolid el Proyecto de Actuación con reparcelación y bases de urbanización del sector de suelo urbano no consolidado SE (O) 25-2 para su aprobación inicial. En la tramitación del expediente municipal se comprueba por los técnicos del Ayuntamiento de Valladolid que en el trazado de la Avenida de Soria existe una vía pecuaria que afecta al ámbito, la Cañada Real Soriana o Merinera (Cañada Real Leonesa Occidental) y que por un error material del Plan no ha sido recogida en los planos de ordenación del PGOU en el lado contrario que definiría la sección transversal de la vía pecuaria conforme al deslinde realizado por la Junta de Castilla y León, de manera que no se contempló el solape en el diseño del ámbito de gestión del PGOU.
La superposición del dominio público cuyo titular es la Junta de Castilla y León, supuso ralentizar el procedimiento iniciado de la promoción inmobiliaria. Por el Ayuntamiento, se propuso tramitar una cesión o cambio de trazado de la cañada que permita la existencia del volumen edificatorio previsto con la superficie afectada por la vía pecuaria. Al respecto, este extremo implicará redefinir la urbanización del espacio público ocupado por la vía pecuaria en el diseño del sector, de tal manera, que sea compatible con el uso de la vía pecuario de conformidad con la Junta de Castilla y León.
En diciembre de 2021 se presenta el PROYECTO DE ACTUACIÓN con las determinaciones completas de reparcelación y básicas de urbanización del sector de suelo urbano no consolidado SE(o) 25-02 con los terrenos que finalmente componen el ámbito. La aprobación definitiva del instrumento de gestión urbanística, será el título inscribible una vez depuradas jurídicamente las parcelas privadas aportadas, al incluir el tramo de la vía pecuaria Cañada Real Soriana.
El presente Proyecto de Urbanización define las obras de urbanización que hay que llevar a cabo sobre las Parcelas Resultantes 2 y 3 del Proyecto de Actuación, de titularidad pública, así como las conexiones necesarias con los viarios existentes (Calle de San Isidro y Calle Algeciras)
2. DESCRIPCIÓN DE LAS OBRAS PROYECTADAS DEFINICIÓN Y SOLUCIONES DE PROYECTO
Una vez realizada la toma de datos y recogidos los estudios especiales que pueden condicionar las soluciones adoptadas para la urbanización, se inicia el diseño definitivo de la misma. Se configura un área estancial tipo plaza, con pavimento predominante de losetas de hormigón y con una zona verde principal junto a una zona de juegos infantiles. Se desarrollan otros parterres secundarios con vegetación. El arbolado se distribuye en las diferentes zonas verdes.
La urbanización se completa con bancos y alumbrado. Se prevé una zona de acceso de vehículos de emergencia en forma de L con entrada y salida desde el Paseo de San Isidro y la calle Algeciras, con un firme de resistencia de 2.000 kg/m² .
Además del área estrictamente perteneciente al Sector SE(o) 25-02, el Proyecto de Urbanización contempla la conexión con los viales existentes de la Calle San Isidro y la Calle Algeciras. En el caso de la calle San Isidro la urbanización se prolonga hasta la esquina con la calle Cádiz, como se describe en los planos.

2ª). Proyecto de actuación Laderas Suroeste de Parquesol del PGOU.
1º.- El objeto del presente pronunciamiento está constituido por el documento que desarrolla la gestión urbanística (técnica y económicamente) correspondiente a actuación integrada de los terrenos de suelo urbano no consolidado.
2º.- El proyecto de actuación se desarrollará mediante gestión privada, interviniendo como promotores los propietarios que asumen este compromiso en convenio solidario.
3º.- El proyecto que se aprueba inicialmente consta de memoria, que contiene determinaciones generales comunes a todos los proyectos de actuación, las determinaciones completas sobre reparcelación y las determinaciones básicas de urbanización, fichas y documentación de las fincas aportadas y de las parcelas resultantes y documentación gráfica.
