Descripción
· El centro docente de Educación Especial estará destinado a los niveles de Segundo Ciclo de Educación Infantil, Educación Primaria y Educación Secundaria.
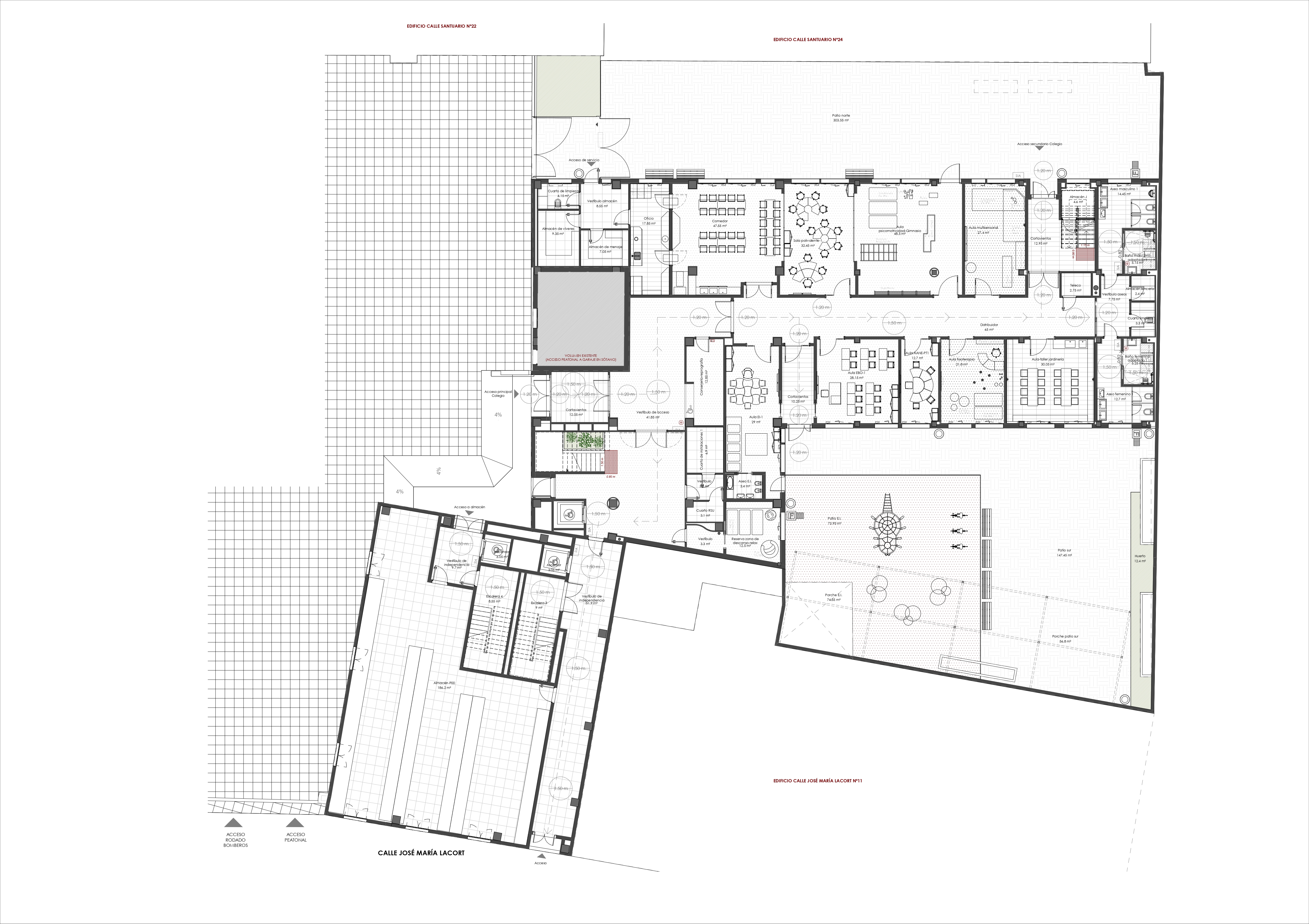
· Además de las correspondientes aulas, contará con espacios educativos y terapéuticos como biblioteca, aulas de psicomotricidad-gimnasio, fisioterapia y multisensorial, sala de relajación, salas polivalentes, sala de ordenadores, aulas de audición y lenguaje, aulas de planes de trabajo individualizados, etc.
La Junta de Gobierno Local celebrada esta mañana ha autorizado la concesión de la pertinente licencia de obras solicitada por la Fundación Emilio Álvarez Gallego, para la construcción de un colegio de Educación Especial en la parcela situada en la Actuación Aislada de Normalización y Urbanización NU.02-02 "Cáritas", incluida en la Revisión del Plan General de Ordenación Urbana de Valladolid, en la calle José María Lacort con vuelta a la calle Simón Aranda de Valladolid.
El edificio proyectado se ubicará en una parcela que cuenta con edificaciones preexistentes que condicionan su implantación. Así, existe un garaje que se desarrolla en 4 plantas bajo rasante, en el que no se interviene. La edificación propuesta se adaptará a esta estructura preexistente, de manera que se ha diseñado un edificio que engloba los espacios educativos, terapéuticos y administrativos mediante un organigrama que responda a todas y cada una de las necesidades.
El centro docente de Educación Especial estará destinado a los niveles de Segundo Ciclo de Educación Infantil, Educación Primaria y Educación Secundaria. Las dependencias se agruparán por usos, siguiendo los criterios normativos y de la experiencia en este tipo de centros, pero también teniendo en cuenta los requisitos expresados por el promotor.
El centro educativo contará con un aula de Segundo Ciclo de Educación Infantil, para un máximo de 25 alumnos, y cinco aulas de Educación Básica Obligatoria, para un máximo de 25 alumnos por cada unidad escolar. Contará también con espacios educativos y terapéuticos como biblioteca, aula de psicomotricidad-gimnasio, aula de fisioterapia, aula multisensorial, sala de relajación, salas polivalentes, sala de ordenadores, aulas de audición y lenguaje, aulas de planes de trabajo individualizados, etc.
El edificio estará formado por un único volumen provisto de varios accesos, interconectados por un vestíbulo central, con dos plantas en forma de "L" y, a su vez, conectadas mediante dos núcleos verticales de comunicación. Se ha diseñado mediante un sistema de zonas yuxtapuestas, con acceso controlado, de modo que al visitante se le permitirá el acceso únicamente hasta el vestíbulo principal donde será recibido, atendido y en su caso dirigido hacia los espacios de carácter más público, como la zona de administración o la Sala de la AMPA, mientras que el alumno una vez que acceda a la zona docente tendrá acceso a los diferentes espacios relacionados con ésta, así como con el comedor, los patios y demás dependencias, pero no así a la zona pública o al exterior del Centro.
Dentro de la parcela una serie de porches, zonas de pavimento flexible y áreas ajardinadas establecerán la comunicación adecuada entre los diferentes ámbitos, creando al mismo tiempo un filtro visual que permitirá el control, la coexistencia y el desarrollo de las diferentes actividades sin interacciones negativas.
El centro cuenta con cuatro patios de recreo diferenciados, con una superficie total de 900m², distribuidos en:
- Patio norte, situado en planta baja, con acceso directo desde el vestíbulo noreste del edificio, y desde el Espacio Libre de la manzana.
- Patio sur, situado en planta baja, con acceso directo desde el distribuidor central del edificio con posibilidad de ser utilizado como pista polideportiva. Dispondrá de una zona con posibilidad de ser cubierta por toldos de tela retráctiles, y de una zona para huerto.
- Patio de Educación infantil: Situado en planta baja, destinado para los alumnos de la Escuela de Infantil y vinculado directamente con dicha aula.
- Patio central: situado en la cubierta del edificio, con acceso desde la escalera noreste.
La distribución del programa del edificio parte de la correcta interrelación de las diferentes zonas y de la adecuada orientación de aulas, talleres y salas.