Descripción

  • La actuación cuenta con un presupuesto superior a los 2,8 millones de euros y se desarrollará en una parcela municipal.

  • El proyecto, en régimen de cooperativa, fomentará el envejecimiento activo y la vida en comunidad.

  • El edificio combinará espacios privados con amplias zonas comunes para promover la convivencia y el apoyo mutuo.

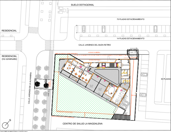
La Junta de Gobierno Local del Ayuntamiento de Valladolid ha aprobado la concesión de licencia de obras (proyecto básico) para la construcción de un edificio residencial colectivo colaborativo destinado a personas mayores, en la calle Jardines del Buen Retiro, número 53, en el barrio de Los Viveros.

El presupuesto de ejecución material de la actuación asciende a 2.805.350 euros.

El proyecto contempla la creación de 27 unidades habitacionales, cada una con capacidad para dos personas, con el objetivo de albergar una comunidad de personas mayores que desarrollen un modelo de vida en común basado en la colaboración, la convivencia y el apoyo mutuo.

La iniciativa se desarrollará en una parcela de titularidad municipal, con una superficie catastral de 2.043 m2, situada en el ámbito del antiguo sector ‘Viveros’. La actuación se lleva a cabo tras la concesión del uso privativo del dominio público local para la explotación de estos terrenos, en el marco del proyecto municipal ‘Constelación’, que busca impulsar la actividad económica y social mediante la puesta a disposición de parcelas en desuso pertenecientes al Patrimonio Municipal del Suelo.

El proyecto se ejecutará en régimen de cooperativa, en el que convivirán estudios de uso privado con espacios comunes tanto interiores como exteriores diseñados para favorecer la relación, la participación y la colaboración entre los residentes.

Asimismo, el modelo contempla la prestación de servicios que no puedan ser cubiertos exclusivamente por la propia comunidad, mediante la contratación de trabajadores o empresas especializadas. Estos servicios se estructurarán en dos categorías: servicios generales y servicios especiales o personalizados, en función de las necesidades de cada residente.


‘Cohousing’ o vivienda colaborativa

Este modelo, conocido como ‘cohousing’ o vivienda colaborativa, cuenta con una amplia trayectoria internacional desde su implantación en países del norte de Europa en la década de 1960 y su posterior desarrollo en Estados Unidos. En España, este tipo de iniciativas ha ido ganando presencia en los últimos años como alternativa residencial para fomentar la autonomía personal y combatir la soledad no deseada.

A diferencia de las viviendas convencionales, este tipo de edificaciones combina espacios privados de menor tamaño con amplias zonas comunes —como comedor, lavandería, gimnasio u otras áreas de uso compartido—, que facilitan la interacción social, la participación en actividades colectivas y el fortalecimiento del sentimiento de comunidad.