Descripción
· Se podrán alquilar bicicletas públicas de carga y utilizar el espacio para la logística de la modalidad de ‘última milla’.
AUVASA destinará cerca de 400.000 euros a la creación de un microhub para la distribución urbana de mercancías en bicicletas de carga, con el objetivo de ofrecer un servicio público a las empresas y autónomos que realizan entregas de mercancías de volumen reducido en Valladolid y facilitar el transporte de proximidad o ‘última milla’ en la ciudad.
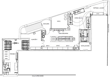
De esta forma, una vez desplegados los servicios para la utilización de la bicicleta como transporte sostenible (alquiler público y Parkibici), la Sociedad municipal incorporará a su gestión un proyecto pionero en España, que se desarrollará en un local situado en el número 17 de la calle López Gómez, en las antiguas Galerías de Alimentación. Este espacio experimentará una profunda renovación que abarcará la adaptación de sus dos plantas (planta baja y sótano).
En la reforma se contempla la distribución de espacios para aparcamiento público seguro de bicicletas, dentro de la red Parkibici, así como para el servicio público de bicicletas de carga. La adaptación de estos espacios también tendrá en cuenta la parte de logística y almacenamiento temporal, que facilite la gestión y reparto de la mercancía, constituyéndose, por tanto, en un microhub de movilidad de bicicleta de carga.



El proyecto, financiado con fondos europeos NextGeneration EU, con cargo al Plan de Recuperación, Transformación y Resiliencia, tiene un plazo de ejecución total de un año, si bien se estima que la primera fase haya concluido antes de que finalice el presente ejercicio.
La iniciativa permitirá que se utilice el transporte sostenible en la ciudad, no sólo como medio para llegar al trabajo si no para desarrollar el propio trabajo, convirtiéndose así en fuente de autoempleo en Valladolid, prestando servicio de transporte o entrega de mercancías entre los propios comercios, y entre los comercios y los consumidores finales, ya sea utilizando las bicicletas de carga de los propios usuarios o utilizando las bicicletas públicas de carga que pondrá en servicio AUVASA.
Aquellas empresas o autónomos interesados en el proyecto podrán obtener más información contactando con AUVASA, a través del número de teléfono 983 457 720 ó del correo electrónico clientes@auvasa.es
