Descripción
La Junta de Gobierno Local del Ayuntamiento de Valladolid ha aprobado la concesión de dos licencias de obras (proyecto básico y de ejecución) destinadas a la mejora de sendos centros educativos de la ciudad, promovidas por la Dirección Provincial de Educación de Valladolid. Las actuaciones a ejecutar tienen por objeto satisfacer lo dispuesto en la Ley 3/1998, de 24 de junio, de accesibilidad supresión de barreras y su reglamento Decreto 217/2001, de 30 de agosto, así como el REAL DECRETO 314/2006, de 17 de marzo, por el que se aprueba el Código Técnico de la Edificación, DB-SUA".
Cubierta en el CEIP Íñigo de Toro
Por un lado, se ha concedido licencia de obras para la instalación de una cubierta en el CEIP Iñigo de Toro, situado en la calle Morena, 11. El proyecto contempla la ejecución de una estructura abierta tipo marquesina, con una superficie aproximada de 300 m2, que permitirá el uso del patio durante los días de lluvia, favoreciendo así la actividad del alumnado en el exterior.
La intervención se circunscribe al patio del recinto escolar, junto al edificio principal. Se proyecta la citada cubierta dispuesta en el sentido longitudinal de la fachada. Formalmente se dispone en dos tramos. Un primer tramo corto ligeramente superior al otro y que quedará junto a la fachada del edificio para que la protección desde el exterior al interior del edificio quede garantizada. La segunda cubierta dispuesta a continuación y ligeramente más baja que la anterior quedará separada de la fachada del edificio unos 140cm, aproximadamente.
Asimismo, la actuación incluye la construcción de una rampa exterior que facilitará el acceso al centro en planta baja, mejorando la accesibilidad.
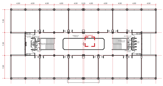
Ascensor en el CEIP Jorge Guillén
Por otro lado, la Junta de Gobierno ha dado luz verde a la instalación de un ascensor en el CEIP Jorge Guillén, ubicado en la calle Argentina, 2. El nuevo ascensor comunicará las plantas baja y segunda del edificio, y se situará en el hueco del patio central interior. La intervención se completa con la ejecución de una rampa exterior para salvar los peldaños existentes en el acceso al centro, contribuyendo también a la eliminación de barreras arquitectónicas.
El edificio objeto de este proyecto no es accesible en las plantas superiores, pues carecen de ascensor o rampa accesible que permitan a cualquier alumno llegar a la totalidad de los espacios docentes. Con la instalación de este ascensor se pretende solucionar la accesibilidad de las dos plantas superiores mediante la implantación de un único elemento mecánico, y permitir mediante la construcción de una rampa la utilización de la entrada principal como elemento accesible.
Ambas actuaciones tienen la consideración de intervenciones parciales de reestructuración y se enmarcan en el objetivo de mejorar las condiciones de uso, accesibilidad y funcionalidad de los centros educativos de Valladolid.