Descripción
-
Las actuaciones incluyen vivienda colectiva y unifamiliar, plazas de garaje, trasteros y espacios comerciales.
La Junta de Gobierno Local del Ayuntamiento de Valladolid ha aprobado la concesión de tres licencias urbanísticas que permitirán la construcción de un total de 66 nuevas viviendas en distintos puntos de la ciudad, con una inversión conjunta que supera los 6,2 millones de euros.
Las actuaciones se desarrollarán en el centro urbano, en el sector APP 41-01 ‘Los Santos-Pilarica’ y en el sector ‘La Galera’, contribuyendo tanto a la regeneración del tejido consolidado como al crecimiento ordenado en zonas de expansión residencial.
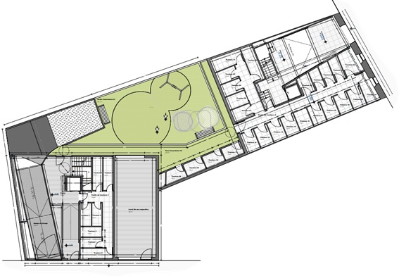
33 viviendas en las calles San Blas y Felipe II
La Junta de Gobierno ha concedido licencia de obras a la mercantil Guía Capital, S.A., para la demolición parcial de un edificio con mantenimiento de fachada en la calle San Blas y la construcción (Proyecto Básico) de dos edificios que albergarán 33 viviendas, un local comercial, 41 plazas de garaje y 32 trasteros, en los números 8 de la calle San Blas y 5 de la calle Felipe II.
El proyecto se desarrolla sobre un solar resultante de la agrupación de dos parcelas, operación derivada de un Estudio de Detalle aprobado por el Ayuntamiento el 24 de febrero de 2025. Dicho instrumento urbanístico permitió la reordenación de volúmenes y alturas, configurando dos áreas edificables y un patio de parcela.
La actuación contempla:
- La construcción de un edificio de 20 viviendas y siete plantas en la calle Felipe II (denominado en la promoción ‘Edificio Pavía’).
- La sustitución de un edificio existente en la calle San Blas, con mantenimiento de la fachada catalogada, para levantar un nuevo inmueble de 13 viviendas (denominado ‘Edificio Lepanto’).
- Un sótano común de tres plantas bajo rasante, que conectará ambas edificaciones y albergará las 41 plazas de aparcamiento para vehículos particulares.
Asimismo, se incluye un proyecto de demolición parcial del inmueble situado en San Blas, 8.
La superficie total construida asciende a aproximadamente 5.350 m² y el presupuesto de ejecución material previsto es de 3.200.000 euros.
26 viviendas en ‘Los Santos-Pilarica’
También se ha aprobado la licencia de obras (Proyecto Básico y de Ejecución) para la construcción de 26 viviendas, garajes y trasteros en la calle Asteroide s/n, en el Sector ‘Los Santos-Pilarica’.
Esta actuación corresponde a la Fase 4 del Complejo Inmobiliario Privado cuya constitución fue autorizada por la Junta de Gobierno el 1 de julio de 2024, permitiendo la ejecución independiente de cuatro fases en la parcela.
La Fase 4 objeto del presente proyecto tiene forma rectangular y se desarrolla sobre una superficie total de 1.575 m², con dos ámbitos diferenciados:
- 1.184m² destinados a Edificación Abierta.
- 390 m² destinados a Patio Libre.
El proyecto contempla un edificio de seis plantas sobre rasante más ático, destinado a 26 viviendas, además de un sótano con 22 plazas de garaje, 26 trasteros y cuartos de instalaciones.
En planta baja se sitúan el acceso al edificio, viviendas, armarios de instalaciones y un patio exterior que contará con espacios ajardinados y zonas pavimentadas. El edificio dispondrá de cuatro fachadas y todas las viviendas tendrán acceso a terrazas transitables. La cubierta será plana y no transitable.
El presupuesto de ejecución material asciende a 1.703.200 euros.
7 viviendas unifamiliares en ‘La Galera’
Por último, la Junta de Gobierno ha concedido licencia para la construcción de 7 viviendas unifamiliares en ‘La Galera’, con fachada a la calle Catamarán.
El proyecto contempla la ejecución de 6 viviendas pareadas y 1 vivienda aislada, todas ellas con planta baja —donde se sitúa el garaje—, planta primera y cubierta plana.
Las viviendas presentan distintas tipologías de distribución interior:
Las viviendas V1 a V4 disponen en planta baja de garaje, tres dormitorios, vestidor, dos baños, vestíbulo, pasillo, escalera, salón-comedor-cocina y despensa; y en planta primera, espacio libre y un tercer baño.
Las viviendas V5 y V6 cuentan con dos dormitorios en planta baja, además del resto de estancias principales, y espacio libre con baño en planta primera.
La vivienda V7, aislada, incorpora mayores dimensiones, incluyendo cinco dormitorios en total, tres baños, despacho y lavadero.
La parcela cuenta con una superficie total de 2.599 m² y una edificabilidad de 1.240 m². El presupuesto de ejecución material asciende a 1.300.000 euros.