Descripción

La Junta de Gobierno Local ha dado el visto bueno en su sesión de hoy a la licencia de obras (proyecto básico) para la reforma de un edificio de oficinas, con cambio de uso. La intervención consistirá en su adecuación para transformarlo en viviendas, trasteros y plazas de garaje, en la calle Enrique Cubero, 32.

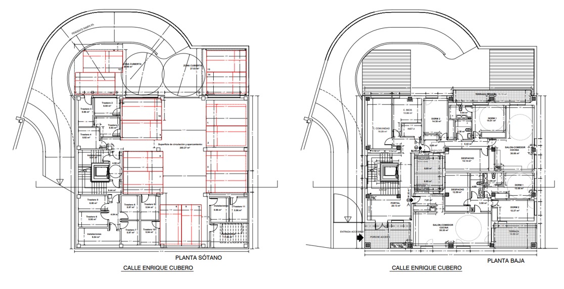
El edificio sobre el que se proyecta alberga en la actualidad oficinas y garaje, y se pretende también, además de la reforma,el cambio de uso para viviendas, garaje y trasteros. Cuenta en la actualidad con una superficie construida de 1.430 m2, distribuidos en planta sótano destinado a garaje y cuartos de instalaciones, plantas primera y segunda en las que se ubicarán las oficinas y planta de cubierta.

Las 11 viviendas se construirán buscando un óptimo equilibrio entre el espacio residencial de día, (salón, cocina) y las zonas de noche (dormitorio). De estas 11 viviendas, 9 se distribuirán en dos dormitorios y despacho y 2 serán tipo apartamento. Además, se crearán 11 trasteros y 14 plazas de garaje, cuatro de ellas exteriores, así como cuartos de comunidad, bicicletas y diversos espacios para instalaciones.