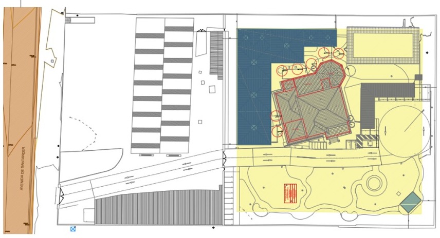
Descripción

La Junta de Gobierno Local ha dado luz verde en su sesión de hoy a las licencias ambiental y de obras con uso provisional de suelo para la ejecución de un complejo turístico de hospedaje y hostelería en la Avenida de Santander, denominado ‘La Pava’.

El proyecto contempla, tras una inversión de 868.308 euros, la materialización de un hostal con piscina y jardines; una carpa de eventos para su uso como restaurante y sala de fiestas, y un espacio exterior para la celebración de eventos y conciertos.

Por lo tanto, el establecimiento dispondrá de tres espacios diferenciados: hostal, carpa y terraza exterior.


-El hostal contará con 408,90 m2 útiles. Planta baja (271,78 m2), sótano (35,39 m2) y planta primera (101,73 m2).


  • En la planta baja, se destinarán 66,95 m2 a comedores, 25,95 m2 a sala de estar, 32,32 m2 a gimnasio, 25,47 m2 a cocina, 24,21 m2 a una habitación y 8,64 m2 a aseos.
  • En la planta primera, se destinarán 88,15 m2 a tres habitaciones.
  • En el sótano, el almacén ocupará 23,25 m2.

-La carpa contará con 416,75 m2 útiles, de los que se destinarán 327,58 m2 a zona de público, 35,98 m2 a cocina y oficio, 14,62 m2 a barra y guardarropa, y 31,89 m2 a aseos.


-La terraza dispondrá de una superficie de 954,58 m2.


La ocupación máxima permitida será de 1.276 personas, con un aforo total de 270 personas en la carpa y de 972 personas en la terraza exterior.